Diiselmootoriga mobiilne õhukompressor

Diiselmootoriga mobiilne õhukompressor

Atlas Copco pakub teile professionaalset diiselmootoriga mobiilset õhukompressorit. See seade koosneb kahest ülitõhusast kompressori komponendist, diiselmootorist, jahutusest, õhu/õli eraldamise ja juhtimissüsteemist, millel on kõrge süsteemi töökindlus ja ühe kompressori lai kasutusala. Oleme professionaalne õhukompressorite tootja ja tarnija Hiinas. Tere tulemast konsulteerima ja ostma.

Saada päring

Tootekirjeldus

Tooteviide

Standardne tarne ulatus



Atlas Copco X1300, Y1300 ja XRS 1500-20 on vaigistatud kaheastmelised õlisissepritsega kruvikompressorid, mille jõuallikaks on vedelikjahutusega kuuesilindriline Cumminsi diiselmootor.

Seade koosneb kahest ülitõhusast kompressorielemendist, diiselmootorist, jahutus-, õhu/õli eraldus- ja juhtimissüsteemist – kõik need on ümbritsetud heli summutatud võimsusega kaetud teraskarbiga.

Erilist tähelepanu on pööratud toote üldisele kvaliteedile, kasutajasõbralikkusele, hooldatavuse lihtsusele ja ökonoomsele kasutamisele, et tagada oma klassi parim omamiskulu.




Saadaolevad mudelid

X1300  

 Kaheastmeline – 1250 cfm@435 psi – Cumminsi diiselmootor

Y1300

Kaheastmeline – 1165 cfm@508 psi – Cumminsi diiselmootor

XRS

1500–20 kaheastmeline – 1434 cfm @ 290 psi – Cumminsi diiselmootor


Omadused

• DrillAir™

• Oiltronix™ V2

• Täiendav 3% kütusesääst

• Uus õliseparaatori anuma kontseptsioon

• XPR

• Dünaamiline vooluvõimendus

Kasu

• 30% suurem puurimiskiirus ja katab laia kasutusala üheainsa kompressoriga

• Süsteemi kõrge töökindlus, mis väldib vee moodustumist kompressori õlisüsteemis ja pikendab elemendi kasutusiga

• Ükski käsitsi reguleeritav ventiil või rõhureguleerimisvoolik ei kõrvalda nendega seotud külmumisprobleeme

• Säästke OSE muutmiseks 1 tund

• Pakkuge laiemat valikut, et katta rohkem rakendusi

• Pakkuge 10% suuremat vooluhulka loputamise ja varre taastäitmise ajal



Tehnilised parameetrid


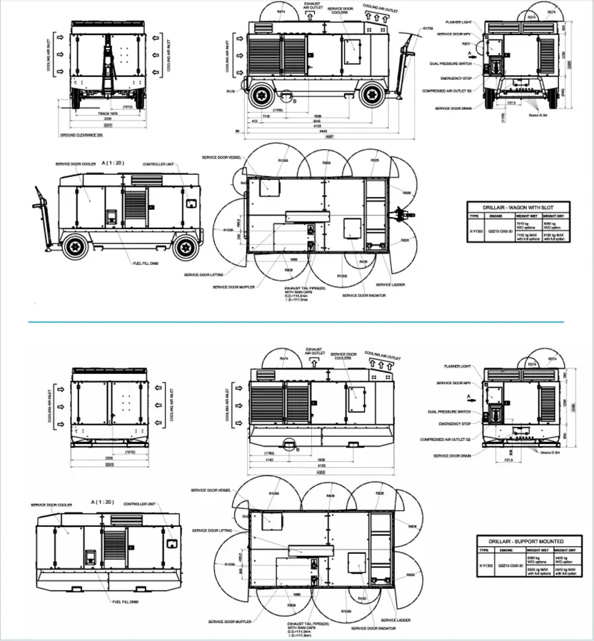
Tehnilised andmed ja mõõtmed


Põhimõttelised andmed



Kompressori element

Kompressori kvaliteeti saab mõõta kasutatava kompressorielemendi töökindluse, efektiivsuse ja vastupidavuse kaudu. Aastakümnete pikkuse kogemuse põhjal kompressorielementide projekteerimisel on tulemuseks kõige tõhusamate ja töökindlamate kompressorite tootmine turul.

Õhu/õli eraldaja

Õhu ja õli eraldamine saavutatakse filtrielemendiga kombineeritud tsentrifugaalse õliseparaatori abil.

Suurema maksimaalse töörõhu jaoks mõeldud separaator on varustatud suletud kõrgsurve kaitseklapi, minimaalse rõhu ventiili, automaatse puhumisventiili ja rõhuregulaatoriga.

Jahutussüsteem

Mootor on varustatud vedelikjahuti ja vahejahutiga ning kompressor on varustatud õlijahutiga. Jahutussüsteem on sobivalt konstrueeritud pidevaks tööks kuni 50°C välistingimustes, kui kõik varikatuse uksed on suletud.

Kompressori reguleerimise süsteem

Diiselmootoriga liikuva õhukompressori reguleerimissüsteem koosneb õhufiltritest, õhuvastuvõtjast/õlieraldajast, kompressorielemendist, sisselaskeklapikomplektist koos sisselaskeklapiga ja väljapuhumisventiilist; kõike juhib elektrooniline reguleerimissüsteem.

Muutuva reguleerimissüsteem tagab täieliku kontrolli kompressori rõhu ja voolu üle. See juhib anuma rõhku ja väljalaskevoolu, mõõtes õhurõhku ja õhutemperatuuri mitmes punktis ning juhib õhu sisselaskeventiili, mootori pöörlemiskiirust ja väljalaskeventiili vastavalt mõõdetud väärtustele.

Ökonoomse kütusekulu tagab täisautomaatne astmeteta kiirusregulaator, mis kohandab mootori pöörlemiskiirust õhuvajadusega.

Tühjendusväljundid

Suruõhk on saadaval alates 1 x G2.


Mootor

Cumminsi diiselmootor

Diiselmootoriga mobiilset õhukompressorit juhib vedelikjahutusega kuuesilindriline Cummins QSZ13-C550-30 diiselmootor. Mootori võimsus edastatakse kompressorielemendile raskeveokite siduri kaudu.

Elektrisüsteem

Mudelid X1300, Y1300 ja XRS 1500-20 on varustatud 24-voldise negatiivse maandusega elektrisüsteemiga.

Seadmed – XC4003

XC4003 juhtpaneel asub kompressori varikatuse esiküljel.

Intuitiivset Atlas Copco XC4003 kontrollerit on lihtne kasutada ja kõik funktsioonid on mugavalt teie käeulatuses. Kontroller haldab ka mootori ECU operatsioonisüsteemi ning mitmeid ohutushoiatusi ja väljalülitusi erinevatel parameetritel (loetletud allpool).

XC4003 kontrolleri funktsionaalsus:

• Põhiekraan

- Anuma rõhk

- Kütuse tase

- Tööaeg

- RPM

- Õhuvoolu CFM

• Üldsätted

- DPF statsionaarne regenereerimine

- Mootori diagnostika

- Auto Start/Load/Stop

- Keeled

- Mõõtühikud

• Mõõtmised

- Kütusekulu

- Mootori jahutusvedeliku temperatuur

- Kompressori elemendi temperatuur

- Anuma rõhk

- Mootori koormus

- Mootoriõli rõhk

- DPF tahmakoormus

- Kütuse temperatuur

- Aku pinge

- Reguleeriv rõhk

- Laaditud / mahalaaditud tunnid

- Edukad/ebaõnnestunud algused

- teenindustaimerid (2)

• Tööjuhtimisseadmed

- Eelseadistatud vool või töörõhk

• Teenindus

- Andmete trendid

- Projekti varundamine

• Alarm

- aktiivsed alarmid

- Sündmuste logi ajalugu

- Häirelogi ajalugu



Ohutusseadmed

Kompressor on standardvarustuses kompressori ja mootori turvaseadmetega. Seade lülitatakse täielikult välja, kui:

- Mootoriõli temperatuuri tõus liiga kõrgele

- Mootoriõli rõhu langus liiga madal

- Suruõhu väljundtemperatuur väljub kindlaksmääratud vahemikust.

- Madal kütusetase

Käivitusmootor on kaitstud ka ülekoormuse eest, mis tekib ülemäärase töötamise või mootori töötamise ajal.


Keretöö

Diiselmootoriga mobiilne õhukompressor on standardvarustuses koos tsingitud terasest varikatusega ja pulbervärviga, mis tagab suurepärase korrosioonikaitse.

Laiad uksed tagavad täieliku teeninduse juurdepääsu kõikidele komponentidele.


Tootmis- ja keskkonnastandardid

X1300, Y1300 ja XRS 1500-20 on toodetud järgides rangeid ISO 9001 eeskirju ja täielikult rakendatud keskkonnakaitsestandardeid.

ISO 14001 nõuetele vastav juhtimissüsteem. Tähelepanu on pööratud sellele, et oleks tagatud minimaalne negatiivne mõju keskkonnale.


Kaasatud dokumentatsioon

Seade tarnitakse koos järgmiste dokumentide ja sertifikaatidega:

- Kompressori varuosade nimekiri.

- Nii kompressori kui ka mootori kasutusjuhend.

- Masina testimise sertifikaat.

- laeva sertifikaat.

Garantii kehtivus

• Garantiiinfo saamiseks vaadake toote esitlust.

• Laiendatud garantiiprogrammid on saadaval; lisateabe saamiseks võtke ühendust kohaliku müügiesindajaga.

* Märkus: toodete pideva täiustamise tõttu võivad tehnilised andmed muutuda ilma ette teatamata.





Kuumad sildid: Diiselmootoriga mobiilne õhukompressor, Hiina, tootja, tarnija, tehas

Seotud kategooria

Saada päring

Palun esitage oma päring allolevas vormis. Vastame teile 24 tunni jooksul.
X
Kasutame küpsiseid, et pakkuda teile paremat sirvimiskogemust, analüüsida saidi liiklust ja isikupärastada sisu. Seda saiti kasutades nõustute meie küpsiste kasutamisega. Privaatsuspoliitika
Keeldu Nõustu